neděle 27. listopadu 2011
sobota 26. listopadu 2011
neděle 20. listopadu 2011
pátek 18. listopadu 2011
po výpočtu těžiště tohoto sestavení, jsem musela trochu posunout hlavní sestavu kontejnerů, takže jsem přišla o 4 menší kontejnery ( jsou vidět na předešlých půdorysech)
- rozhodla jsem se, že použiju ocelový ponton, jelikož se galerie bude pohybovat, jinak v pondělí zkusím zkonzultovat, zda vyhovují velikosti technických místností, trochu se obávám, že jsou hodně malé, nevím jestli třeba nebude možné něco schovat do podpalubí....
- zatím počítám s dvojnásobnou obsluhou- jedna osoba bude u vstupu a druhá bude provozovat kavárnu, která je na druhém konci pontonu- tudíž jsem jim navrhla ,,byt" 2 +kk
- záchody u kavárny jsem dimenzovala na méně jak 50 osob- dámy dva záchody, páni 2 pisoáry a 1 záchod, zatím tu nemám zakreslen záchod pro invalidy...otázka je, jestli bych se měla snažit prostory galerie uzpůsobit i pro invalidy, jelikož požadovaná velikost průjezdu je 1200
- co nejdříve přidám hlavní vizualizaci
- rozhodla jsem se, že použiju ocelový ponton, jelikož se galerie bude pohybovat, jinak v pondělí zkusím zkonzultovat, zda vyhovují velikosti technických místností, trochu se obávám, že jsou hodně malé, nevím jestli třeba nebude možné něco schovat do podpalubí....
- zatím počítám s dvojnásobnou obsluhou- jedna osoba bude u vstupu a druhá bude provozovat kavárnu, která je na druhém konci pontonu- tudíž jsem jim navrhla ,,byt" 2 +kk
- záchody u kavárny jsem dimenzovala na méně jak 50 osob- dámy dva záchody, páni 2 pisoáry a 1 záchod, zatím tu nemám zakreslen záchod pro invalidy...otázka je, jestli bych se měla snažit prostory galerie uzpůsobit i pro invalidy, jelikož požadovaná velikost průjezdu je 1200
- co nejdříve přidám hlavní vizualizaci
neděle 13. listopadu 2011
Plující putovní galerie
Představte si, že hodíte vzkaz v lahvi do vody s nadějí, že někam dopluje. Napíšete do ní vzkaz například, co jste dělali toto ráno, někdo ji vyloví, přečte si vaši myšlenku, váš vzkaz a buď na něj může navázat a přidat tak svoji myšlenku nebo obsah úplně změnit a pak ji pošle prostě dál jako vy.
Zvenku lahev se vzkazem vypadá pořád stejně, ale po každém vylovení zjistíte, že vzkazy jsou různé, možná podle toho, kdo je posílal, odkud a kam, protože její funkce je jasná- pošli to dál.
Plovoucí putovní galerie má stejný výzanm, zdálky vypadá nejasně, nikdo neví co přináší, až po jejím připlutí dostane svůj význam a odhalí, co přiváží. Po tom, co si galerii prohlédnete, ji poskládáte do původního tvaru stejně, jako když vložíte vzkaz do lahve.
Vkaz v lahvi může mít nekonečně mnoho podob, jeho obsah je bezedný, stejně jako plovoucí galerie, její tvar můžete navrhnout podle tématu nebo obsahu toho, co galerie veze nebo tak jak uznáte za vhodné. Galerie začíná svou pouť výstavou 4 semestrů studentských prací. Výstava se po rozložení rozdělí do jednotlivých celků témat- tunel, most, dům, koryto.
Výhoda galerie oproti vzkazu v lahvi je ta, že se může vrátit zpět do svého domovského přístavu a to je Praha
Představte si, že hodíte vzkaz v lahvi do vody s nadějí, že někam dopluje. Napíšete do ní vzkaz například, co jste dělali toto ráno, někdo ji vyloví, přečte si vaši myšlenku, váš vzkaz a buď na něj může navázat a přidat tak svoji myšlenku nebo obsah úplně změnit a pak ji pošle prostě dál jako vy.
Zvenku lahev se vzkazem vypadá pořád stejně, ale po každém vylovení zjistíte, že vzkazy jsou různé, možná podle toho, kdo je posílal, odkud a kam, protože její funkce je jasná- pošli to dál.
Plovoucí putovní galerie má stejný výzanm, zdálky vypadá nejasně, nikdo neví co přináší, až po jejím připlutí dostane svůj význam a odhalí, co přiváží. Po tom, co si galerii prohlédnete, ji poskládáte do původního tvaru stejně, jako když vložíte vzkaz do lahve.
Vkaz v lahvi může mít nekonečně mnoho podob, jeho obsah je bezedný, stejně jako plovoucí galerie, její tvar můžete navrhnout podle tématu nebo obsahu toho, co galerie veze nebo tak jak uznáte za vhodné. Galerie začíná svou pouť výstavou 4 semestrů studentských prací. Výstava se po rozložení rozdělí do jednotlivých celků témat- tunel, most, dům, koryto.
Výhoda galerie oproti vzkazu v lahvi je ta, že se může vrátit zpět do svého domovského přístavu a to je Praha
neděle 6. listopadu 2011
Most
prostor tématu: Most Karlín- Holešovice
propojila jsem dva kontejnery, odstranila vnitřní přepážku, interiér je obložen mdf deskami
sobota 5. listopadu 2011
čtvrteční konzultace
schema seřazení kontejnerů dle témat výstavy
pro názornost: barevnost jen napovídá, kde jsou jedmotlivá témata
vizualizace prostoru tématu Koryta, před kavárnou
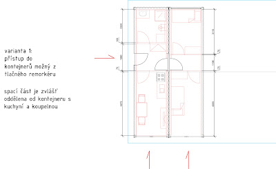
půdorys: nahoře je spodní patro - vlevo vstup
dole je půdorys horního patra
nyní pracuji na vnitřních prostorech jednotlivých témat výstavy....
Přihlásit se k odběru:
Komentáře (Atom)











